5 locali in vendita

Palermo, Via Gorizia - Centro Storico
€ 300.000
5 locali 5 locali
160 Mq 160 Mq
2 bagni 2 bagni

5 locali in vendita

Palermo, Via Gorizia - Centro Storico

Descrizione annuncio

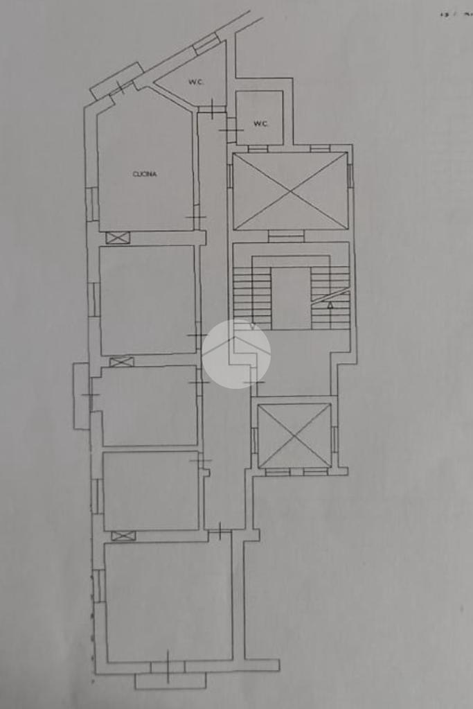
APPARTAMENTO:Appartamento di 160 mq, situato all'interno di un palazzo storico del 1800, costruito su progetto dell'architetto Ernesto Basile.
L'immobile è composto da una comoda cucina soggiorno, quattro camere da letto matrimoniali, due bagni con box doccia.
Ogni ambiente ha un punto luce , sia esso finestra o balcone.
I balconi presenti infatti sono tre, uno dei quali affaccia proprio su Via Roma.

La posizione è strategica e si presta veramente bene sia ad un uso abitativo che ad un uso investimento (locazioni, studenti, uso turistico...).
Posto al secondo piano, l'immobile è stato rimodernato un paio di anni fa.
Troviamo infatti gli impianti idrico ed elettrico totalmente rifatti.
Vi è predisposizione per l'impianto di riscaldamento, fatta eccezione per le piastre. Allo stato originario son rimasti gli infissi.
La struttura rende facilmente modificabile l'immobile, secondo le proprie esigenze.

Un'opportunità imperdibile per chi desidera vivere e/o investire in una delle zone più richieste e affascinanti della città.

Contattaci per maggiori informazioni o per fissare una visita.
È possibile visionare l'immobile tutti i giorni previo appuntamento telefonico al n. 327.2009.248.

STABILE: edificato nell'ottocento e composto da quattro piani. Le spese condominiali comprendono pulizia e luce scala.

ZONA: L'immobile è situato nel primo tratto di Via Roma, a pochi passi da Via Vittorio Emanuele e dal Teatro Biondo, in una delle zone più centrali e servite di Palermo. La posizione strategica garantisce facile accesso alle principali attrazioni storiche, culturali e commerciali della città.

'Ogni agenzia ha un proprio titolare ed e' autonoma. '
Le presenti informazioni non costituiscono elemento contrattuale.

Mostra tutto

Nelle vicinanze

Trasporto pubblico Trasporto pubblico
Palermo Centrale
Palermo Centrale
350 m
Palazzo Reale - Orleans
Palazzo Reale - Orleans
1,1 Km
Stazione Centrale
Stazione Centrale
290 m
Ingrassia
Ingrassia
520 m
Roma FS
Roma FS
30 m
Ricariche auto elettriche Ricariche auto elettriche
IONITY Basile Palermo
2,2 Km
Scuole Scuole
CLA - Centro Linguistico d'Ateneo
370 m
Scuole
410 m
Scuola Elementare F.P. Perez
460 m
Facoltà di Giurisprudenza
490 m
Scuole
510 m
Farmacia Farmacia
Roma
140 m
Farmacia
230 m
Farmacia Naro
600 m
Farmacia delle Poste
960 m
Farmacia Salem
1,0 Km
Ospedali Ospedali
Ospedale dei bambini "Giovanni Di Cristina"
950 m
Azienda Ospedaliera Universitaria Policlinico "Paolo Giaccone"
960 m
Policlinico (Nuove aule)
1,2 Km
Ospedale Civico e Benefratelli "G. Di Cristina" e "M. Ascoli"
1,2 Km
Ospedale Buccheri La Ferla Fatebenefratelli
1,8 Km
Supermercati Supermercati
Lidl
110 m
Mini Market
150 m
Conad
500 m
Carrefour
560 m
Supermercato 3C
700 m
Negozi Negozi
Negozi
120 m
Alex & david
210 m
Antica cravateria
370 m
Intimo e Corredo di Tiziana Quattrocchi
390 m
Panificio Vercio Pietro
550 m
Bar Bar
Qvivi
250 m
Old School
260 m
Gascoigne
260 m
Bump
280 m
Monkey
310 m
Ristoranti Ristoranti
La Locanda
170 m
Al Vecchio Ristoro del Corso
240 m
Osteria
270 m
I Picciotti
340 m
Ciccio Passami l'Olio
350 m
Mostra tutto

Caratteristiche

Rif.:
61144393
Piano:
2 di 4 con ascensore (Piano medio)
Balconi:
3
Camere da letto:
4
Arredamento:
Assente
Condizionamento:
Autonomo
Mostra tutto
Prezzo Prezzo
€ 300.000
Rata mutuo Rata mutuo
€ 1.414 / mese
Spese annue Spese annue
€ 600
Proponi il tuo prezzoProponi il tuo prezzo
Immobile valutato con T·Valuta

Classe Energetica

E
E
E
E
E
E
E
E
E
EP globale non rinnovabile:
107.50 kW h/m² anno
EP globale rinnovabile:
107.50 kW h/m² anno
EP invernale del fabbricato:
EP estiva del fabbricato:
Anno di costruzione:
1800
Riscaldamento:
Autonomo
Tipo impianto:
A radiatori
Tipo alimentazione:
Metano

Ti interessa visionare l'immobile?

Fissa un appuntamento  Fissa un appuntamento

Richiedi informazioni

Clicca su Leggi per aprire l'informativa
* Questi campi sono obbligatori

Calcola il tuo mutuo

Semplice e senza impegno
Anticipo

( % )
Mutuo

( % )

pochi semplici passi

inserisci i tuoi dati
Questionario completato
Grazie per aver richiesto un appuntamento senza impegno con un nostro Consulente del Credito e Assicurativo.

Hai inserito correttamente tutti i dati necessari e a breve riceverai una e-mail con un link da convalidare per inviare i tuoi dati.
Affiliato
Palermo Storica Sas
Via Divisi, 2/4 90133 Palermo (PA)

Il nostro staff


  • Maria Ceraulo
    Affiliata

  • Elisa Saltalamacchia
    Collaboratrice

  • Angela Tarantino
    Responsabile
Via Divisi, 2/4 90133 Palermo (PA)
Zona: Centro Storico-Palazzo Reale-Piazza Marina-Kalsa-Maqueda-Roma
Mostra su mappa
Orari: lunedì 09:00–13:00 / 15:30–19:30 martedì 09:00 –13:00 / 15:30–19:30 mercoledì 09:00–13:00 / 15:30–19:30 giovedì 09:00–13:00 / 15:30–19:30 venerdì 09:00–13:00 / 15:30–19:30 sabato 09:00–13:00 DomenicaChiuso .
Affiliato
Palermo Storica Sas
Via Divisi, 2/4 90133 Palermo (PA)

2026 Tecnocasa Franchising S.p.A. - P. IVA 08365160152 - Via Monte Bianco 60/A 20089 Rozzano (MI). Ogni agenzia ha un proprio titolare ed è autonoma. Privacy policy | Policy utilizzo | Cookie policy